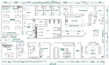
The main community hub building at Little Blue Cabins is designed to provide everything a healthcare and educational facility would require. We want it to be 'home' for the residents, and creating it to be a beautiful space will go a long way towards instilling a sense of dignity and pride. We are confident that the residents will want to keep it this way. The warm earth tones and textures are all part of providing a non-clinical environment and helps to create that 'homey' atmosphere for the people that will be living and working there. (Click to enlarge images)


















Interior design by York River Interiors
c/o Kevin Taylor
Chair of LBC Board
29 Glory Cres Bancroft, ON K0L 1C0
613.334.0409
littlebluecabins@gmail.com
